تفاصيل
عقار شارع عمان - السالمية
| المحافظة | حولي |
| نوع المبني | استثماري - سكني |
| المساحة الكلية | 3122.5 |
| الرقم الآلي | 95321105 |
| رقم القسيمة | 6 |
| العنوان | السالمية - شارع عمان - قطعة 217 |
| عمر المبني | 2022 |
| عدد الادوار | 18 |
| عدد الشقق | 89 |
| نوع المستأجر | سكني |
| نوع السرداب | استثماري - سكني |
الموقع
يقع العقار في شارع عمان - السالمية قطعة 217 قسيمة 6 في محافظة حولي - دولة الكويت وهي من الشوارع الرئيسية في منطقة السالمية.
يقع بالقرب من المرافق والخدمات التي تلبي احتياجات السكان والزوار، حيث تتميز منطقة السالمية بتنوعها الثقافي وكثافتها السكانية العالية مما يجعلها واحدة من أكثر المناطق نشاطًا في الكويت.
مميزات شارع عمان:
•الموقع المركزي: يتمتع شارع عمان بموقع استراتيجي يسهل الوصول منه إلى مختلف أجزاء السالمية والمناطق المجاورة.
• الخدمات المتنوعة: يحتوي الشارع على مجموعة من المحلات التجارية، المطاعم، والمقاهي التي تقدم خيارات متنوعة للزوار.
• القرب من المؤسسات التعليمية: يقع بالقرب من عدة مدارس ومؤسسات تعليمية، مما يجعله مناسبًا للعائلات.
المسافة إلى الأماكن المهمة في الكويت:
• مدينة الكويت (العاصمة): يبعد شارع عمان حوالي 10 كيلومترات عن وسط مدينة الكويت، ما يعادل 15-20 دقيقة
• مارينا مول: يقع هذا المركز التجاري الشهير على بعد حوالي 2 كيلومتر من شارع عمان، ويمكن الوصول إليه في غضون 5 دقائق.
• مركز الشيخ عبد الله السالم الثقافي: يبعد المركز حوالي 3 كيلومترات عن شارع عمان، ويستغرق الوصول إليه حوالي 7-10 دقائق.
• أبراج الكويت: تقع على بعد حوالي 12 كيلومترًا من شارع عمان، ما يستغرق حوالي 20-25 دقيقة بالسيارة.
بفضل هذه المميزات والقرب من المعالم المهمة، يُعتبر شارع عمان في السالمية موقعًا مثاليًا للسكن والتسوق والاستمتاع بالأنشطة الترفيهية في الكويت.
المواصفات
• يتكون البرج من سردابين + دور أرضي + 17 دور متكرر+ دور18
• الدور الأرضي: يحتوي 5 محلات تجارية وحمام سباحة و ساحة ألعاب و مواقف السيارات.
• عدد اجمالي الوحدات السكنية : 89 وحدة
• إجمالي 89 وحدة سكنية (17 وحدة - 4 غرف نوم) (17 وحدة - 3 غرف نوم) ( 51 وحدة -
2 غرف نوم ( 4 وحدة - 1 غرفة نوم)
خدمات العقار
| مكونات | Components | |
| عدد الشقق | 17 | Apartment No. |
| عدد الغرف | 4 | Rooms No. |
| حالة الشقة | مؤثثة | Apartment Status |
| غرفة الاستقبال | 33.5م | Hall |
| مطبخ | 9.5م | Kitchin |
| الحمام الرئيسي | 3.8م | Main Bathroom |
| غرفة غسيل | 3.05م | Laundry Room |
| حمام خادمة | 1,7م | Maid Bathroom |
| غرفة الماستر | 14.8م | Master Room |
| حمام ماستر | 3.77م | Master Bathroom |
| الغرفة الأولى | 12.18م | First Room |
| الغرفة الثانية | 11.22م | Second Room |
| الغرفة الثالثة | 13.88م | Third Room |
| المساحة الكلية | 129م | Total Area |
| مكونات | Components | |
| عدد الشقق | 17 | Apartment No. |
| عدد الغرف | 3 | Rooms No. |
| حالة الشقة | مؤثثة | Apartment Status |
| غرفة الاستقبال | 33.5م | Hall |
| مطبخ | 9.5 م | Kitchin |
| الحمام الرئيسي | 3.95 م | Main Bathroom |
| غرفة غسيل | 3.14م | Laundry Room |
| حمام خادمة | 1.74م | Maid Bathroom |
| غرفة الماستر | 13.66م | Master Room |
| حمام ماستر | 2.72م | Master Bathroom |
| الغرفة الأولى | 13.1م | First Room |
| الغرفة الثانية | 13.33م | Second Room |
| المساحة الكلية | 114.5م | Total Area |
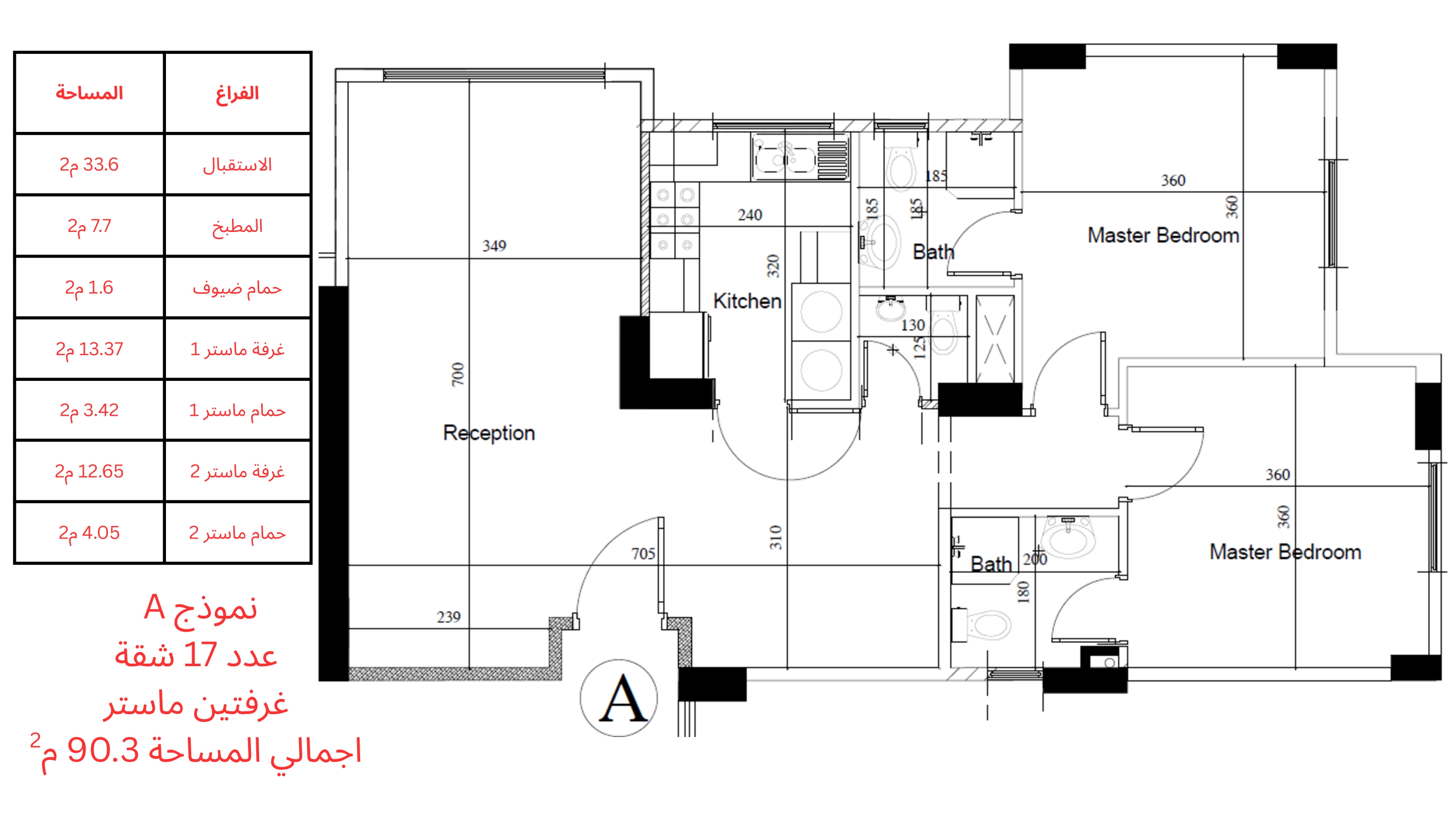
| مكونات | Components | |
| عدد الشقق | 51 | Apartment No. |
| عدد الغرف | 2 | Rooms No. |
| حالة الشقة | مؤثثة | Apartment Status |
| غرفة الاستقبال | 33.6 م | Hall |
| مطبخ | 7.7م | Kitchin |
| حمام ضيوف | 1.6م | Guest Bathroom |
| غرفة الماستر الأولى | 13.7م | 1st Master's Bedroom |
| حمام ماستر | 3.42م | Master Bathroom |
| غرفة ماستر الثانية | 12.65م | 2nd Master Room |
| حمام ماستر الثاني | 4.05 م | 2nd Master's Bathroom |
| المساحة الكلية | 90.3 م | Total Area |
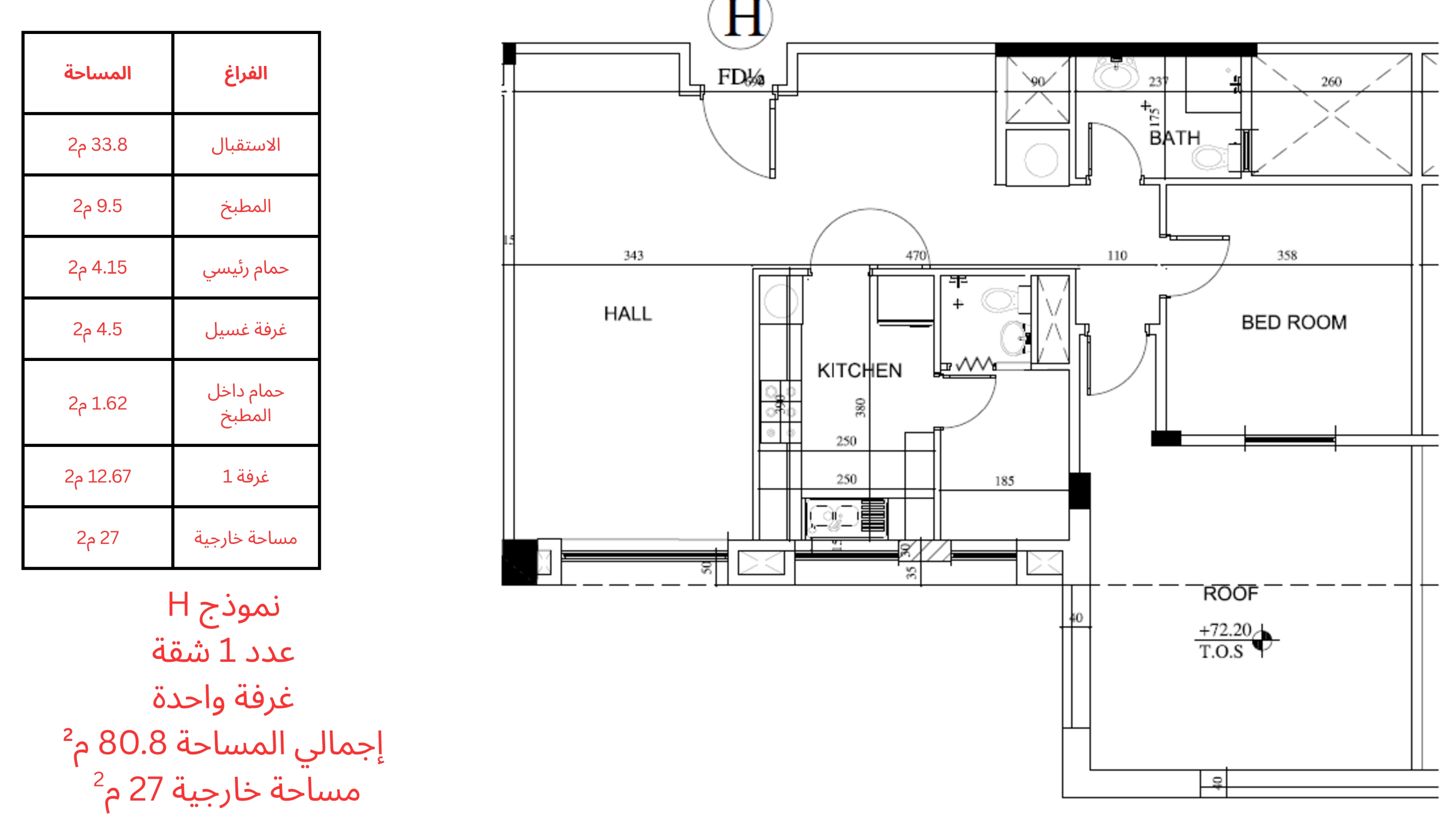
| مكونات | Components | |
| عدد الشقق | 4 | Apartment No. |
| عدد الغرف | 1 | Rooms No. |
| حالة الشقة | مؤثثة | Apartment Status |
| غرفة الاستقبال | 22.9 م | Hall |
| مطبخ | 9.5 م | Kitchin |
| الحمام الرئيسي | 3.8م | Main Bathroom |
| حمام خادمة | 1.7م | Maid Bathroom |
| غرفة الماستر | 14.9م | Master Room |
| حمام ماستر | 2.88 م | Master Bathroom |
| مساحة خارجية | 52.3 م | Roof |
| المساحة الكلية | 76.8 م | Total Area |
الوحدات الشاغرة
| رقم الطابق | رقم الشقة | عدد الغرف | المبلغ | إجراء |
|---|
تكييف الهواء
تدفئة مركزية
مصعد
حمام سباحة
مركز لياقة بدنية
منطقة شواء
مرافق رياضية
مراقبة بالكاميرات
أنظمة السلامة من الحرائق
احتياطي كهرباء
الإنترنت/واي فاي
خدمات الصيانة
مواقف للزوار
نظام الانتركم
مجرى النفايات
مواقف سيارات داخلية