برج آمال

المحافظة الكويت
نوع المبني استثماري - سكني
المساحة الكلية 1,015.89
الرقم الآلي 95653759
رقم القسيمة 78
العنوان الدعية - ضاحية حصة المبارك - ق5
عمر المبني 2023
عدد الادوار 12
عدد الشقق 20
عدد البنت هاوس 1
نوع المستأجر سكني عائلات
نوع السرداب استثماري - سكني

الموقع

• يقع البرج آمال في قلب مشروع حصة مبارك، الدعية، شارع الخليج العربي قطعة رقم 5 قسيمة 78.
• تقع في منطقة سكنية حديثة وراقية في موقع متميز ومنطقة نمط حياة فاخرة.
• يتميز موقع مشروع "عقار آمال" في ضاحية حصة المبارك بموقع استراتيجي في قلب العاصمة ، حيث يبعد حوالي 3 كم عن أبراج الكويت و4 كم تقريباً عن سوق شرق التجاري كما يبعد نحو 5 كم عن مركز مدينة الكويت، مما يجعله قريباً من المناطق التجارية والحيوية. يبعد المشروع حوالي 8 كم عن المطار الدولي، مما يوفر سهولة الوصول للمسافرين. يقع المشروع أيضاً على بعد حوالي 6 كم من المركز العلمي ومارينا مول في السالمية، مما يعزز الوصول للأنشطة الترفيهية والثقافية. كما يقع على بعد حوالي 12 كم من مستشفى مبارك الكبير، و10 كم عن الأفنيوز، أحد أكبر مراكز التسوق في الكويت، مما يضفي ميزة إضافية لموقعه المتميز.

المواصفات

• يتكون البرج من 12 طابق ،كل طابق يتكون من ( 2 وحدة ) من الدور الأول إلى الدور العاشر
• تكون الدور11 و12 من PENTHOUSE
• اجمالي عدد الوحدات السكنية 21 وحدة
• إجمالي 21 وحدة سكنية: (12 وحدة - 2 غرفة نوم) ، ( 8 وحدات - 3 غرف نوم) ، ( بنتهاوس - 4 غرف نوم)

خدمات العقار

  • إطلالة بحرية
  • شرفة/تراس
  • تكييف الهواء
  • تدفئة مركزية
  • مصعد
  • حمام سباحة
  • مركز لياقة بدنية
  • أمن على مدار الساعة
  • مراقبة بالكاميرات
  • ألواح شمسية
  • جاكوزي
  • نظام الانتركم
  • لوبي العقار
  • مواقف سيارات داخلية
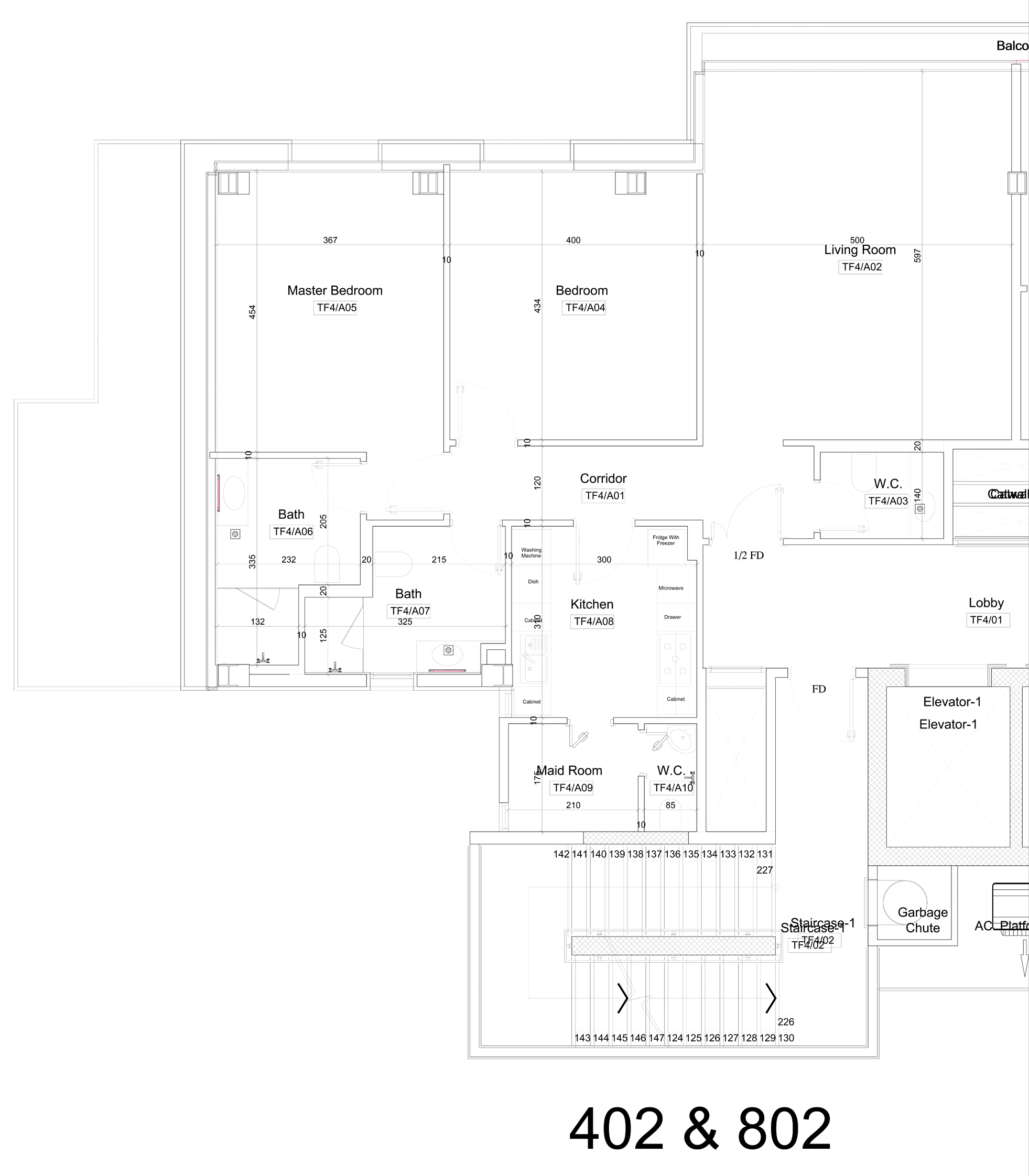
مكونات Components
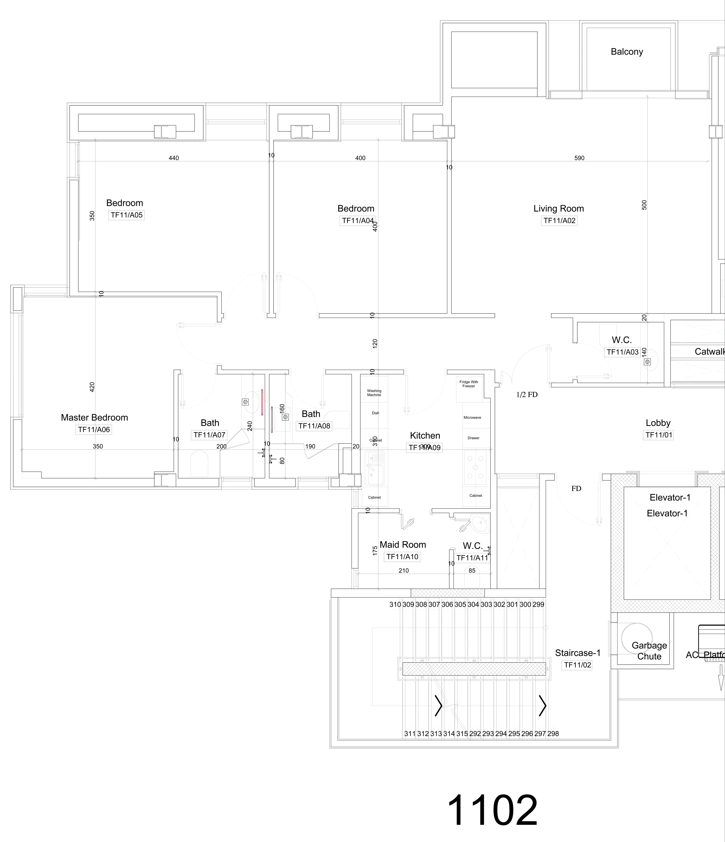
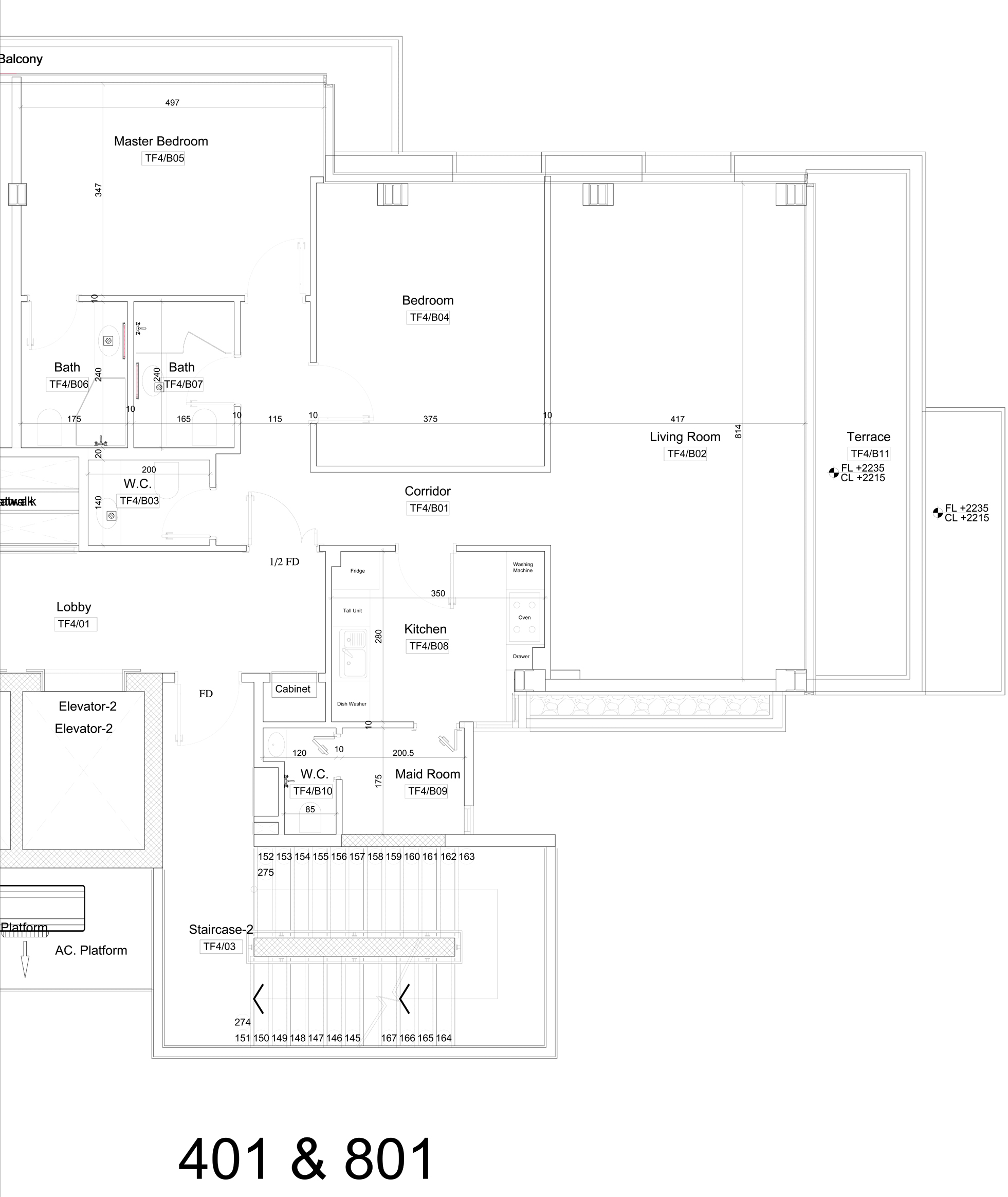
عدد الشقق 8 Apartment No.
عدد الغرف 3 Rooms No.
عدد الحمامات 4 Bathrooms No.
حمام ضيوف 2*1.4 Guest Bathroom
حمام خادمة 1.75*1.20 Maid Bathroom
حمام رئيسي 2*1.2 Main Bathroom
حمام ماستر 3*1.95 Master Bathroom
حالة الشقة غير مؤثثة Apartment Status
مساحة الشقة M2 1114.5 Apartment Area M2
غرفة خادمة 2.5*1.75 Maid Room
مطبخ 3.1*3 Kitchin
الصالة 6.15*5 Living Room
بلكونة يوجد Balcony
غرفة غسيل لا يوجد Laundry Room
غرفة الماستر 6*5 Master Room
الغرفة الأولى 4.4*3.50 First Room
الغرفة الثانية 4.2*3.50 Second Room

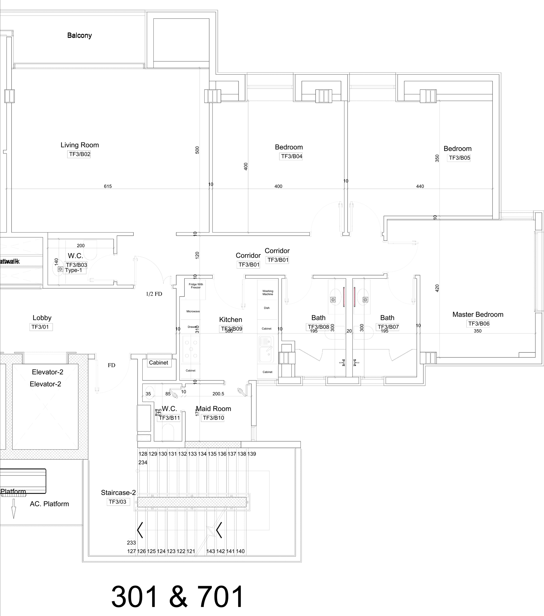
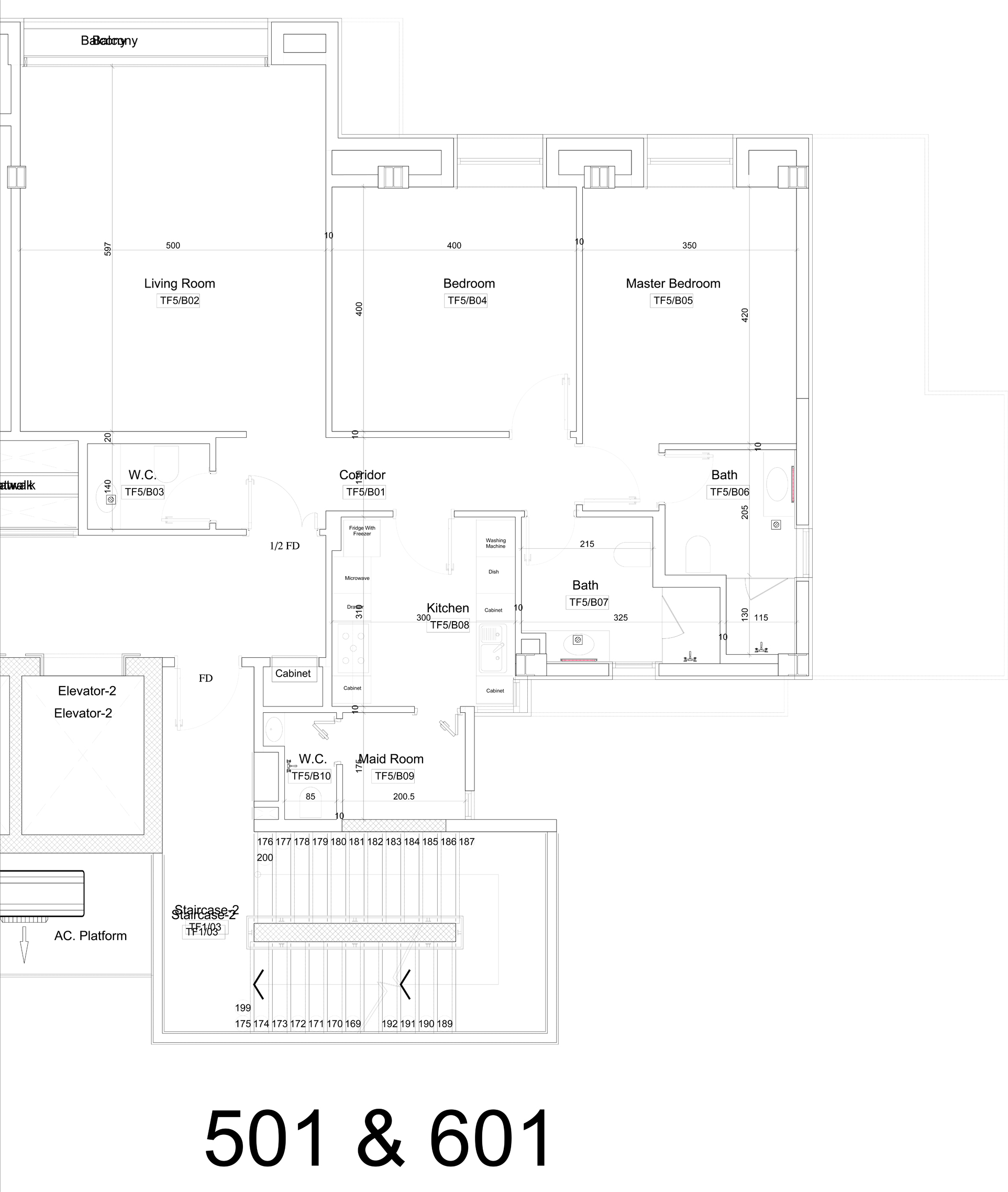
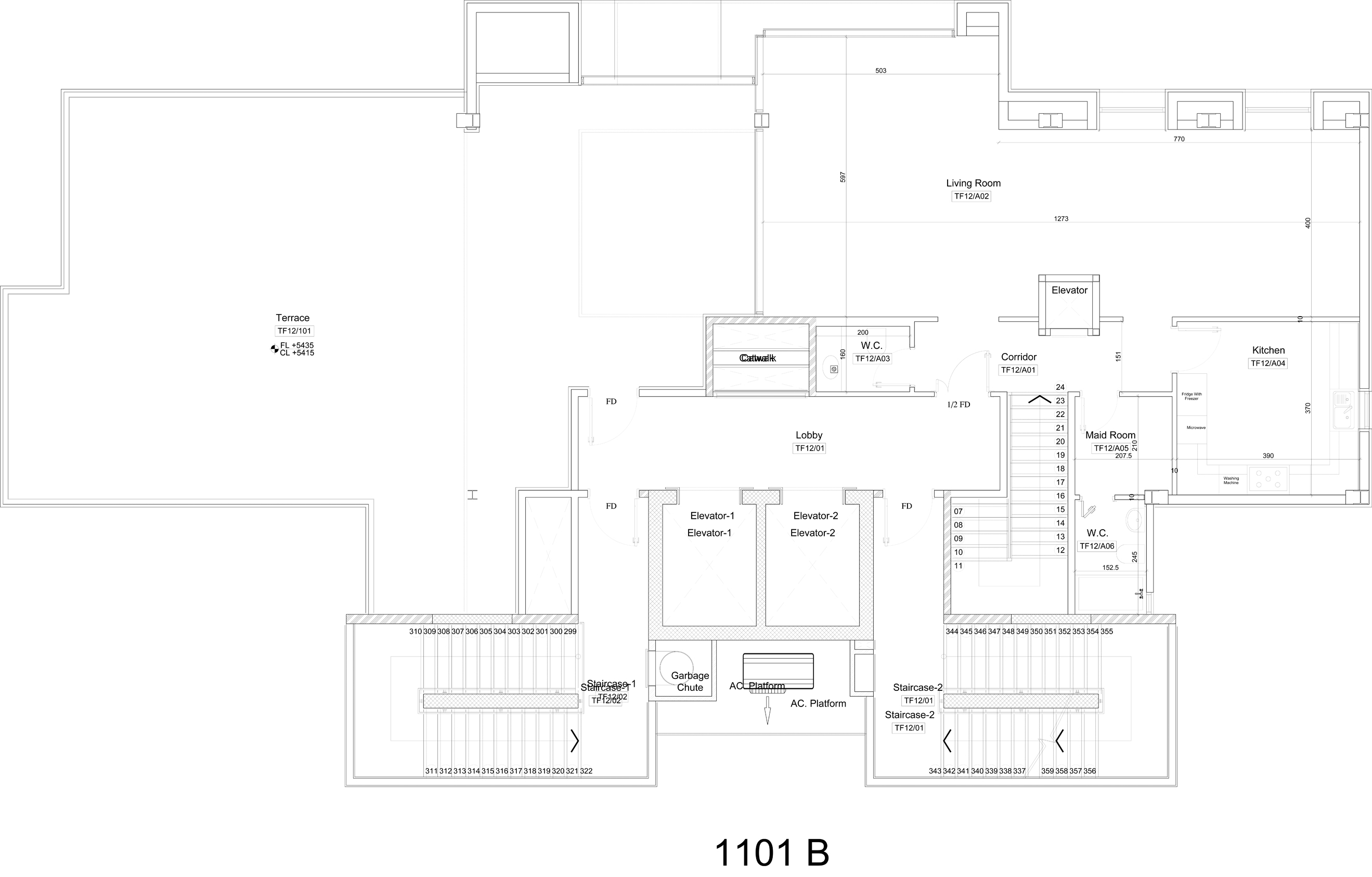
مخطط الوحدات

مكونات Components
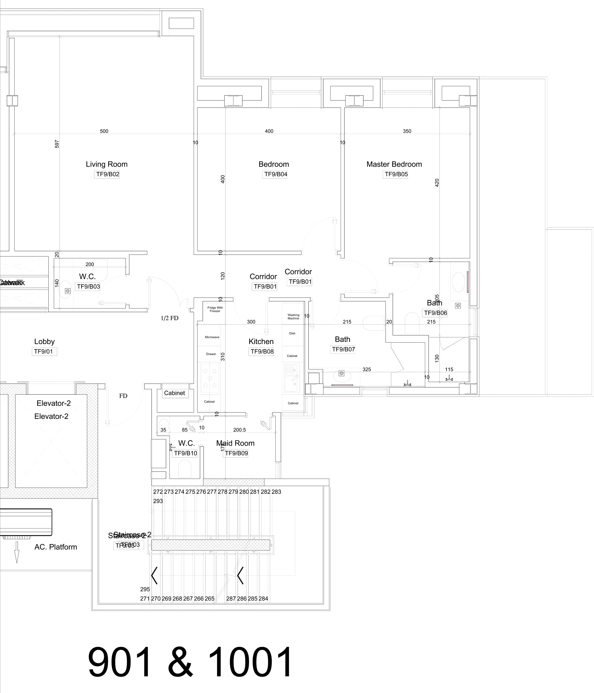
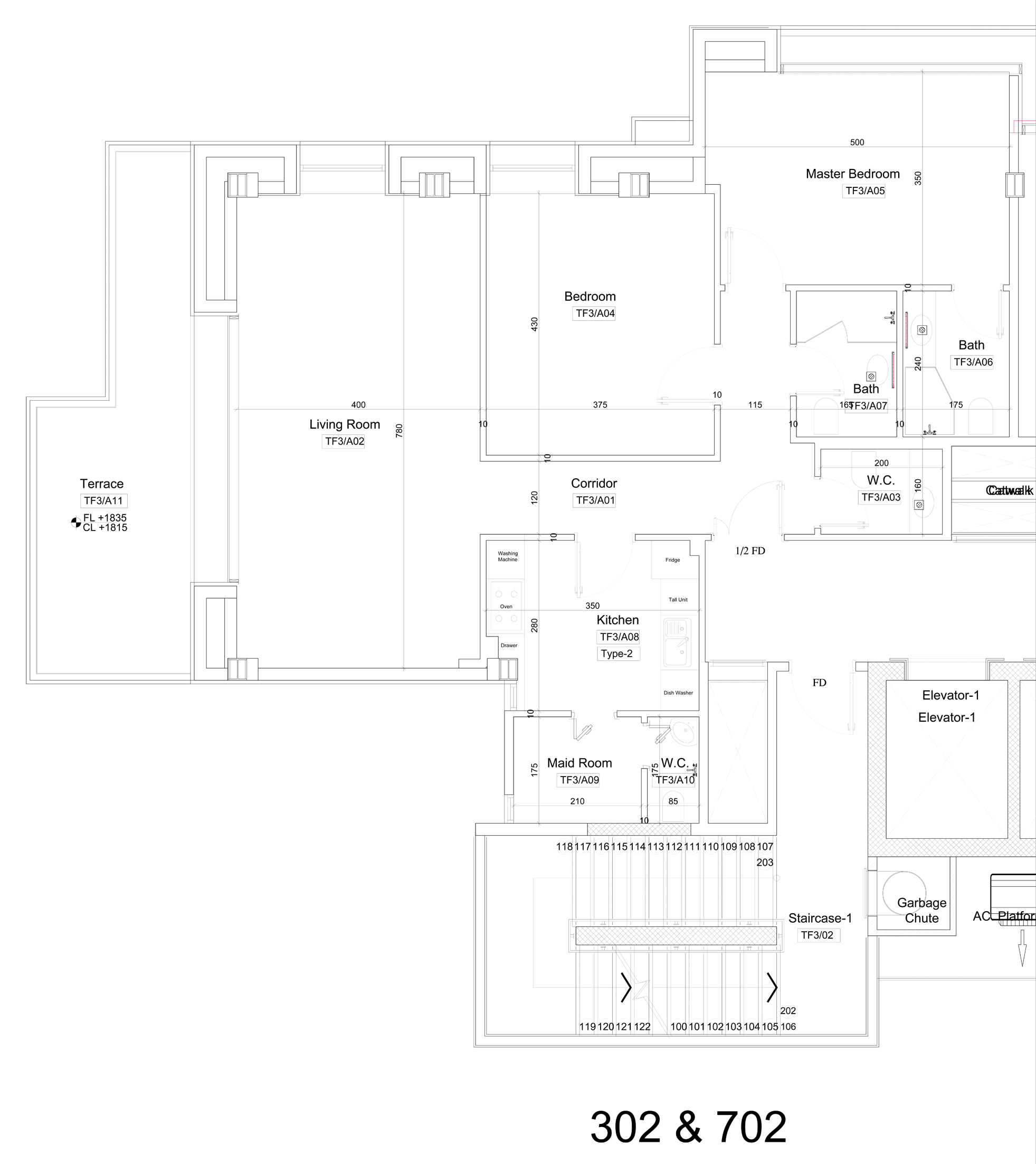
عدد الشقق 12 Apartment No.
عدد الغرف 2 Rooms No.
عدد الحمامات 4 Bathrooms No.
حمام ضيوف 2*1.4 Guest Bathroom
حمام خادمة 1.75*.08 Maid Bathroom
حمام رئيسي 3.95*2.15 Main Bathroom
حمام ماستر 3.5*2.16 Master Bathroom
حالة الشقة غير مؤثثة Apartment Status
مساحة الشقة M2 114.5 Apartment Area M2
غرفة خادمة 2.5*1.75 Maid Room
مطبخ 3.1*3 Kitchin
الصالة 6.15*5 Living Room
بلكونة تراس Balcony
غرفة غسيل لا يوجد Laundry Room
غرفة الماستر 4.20*3.5 Master Room
الغرفة الأولى 4.20*3.5 First Room

مخطط الوحدات

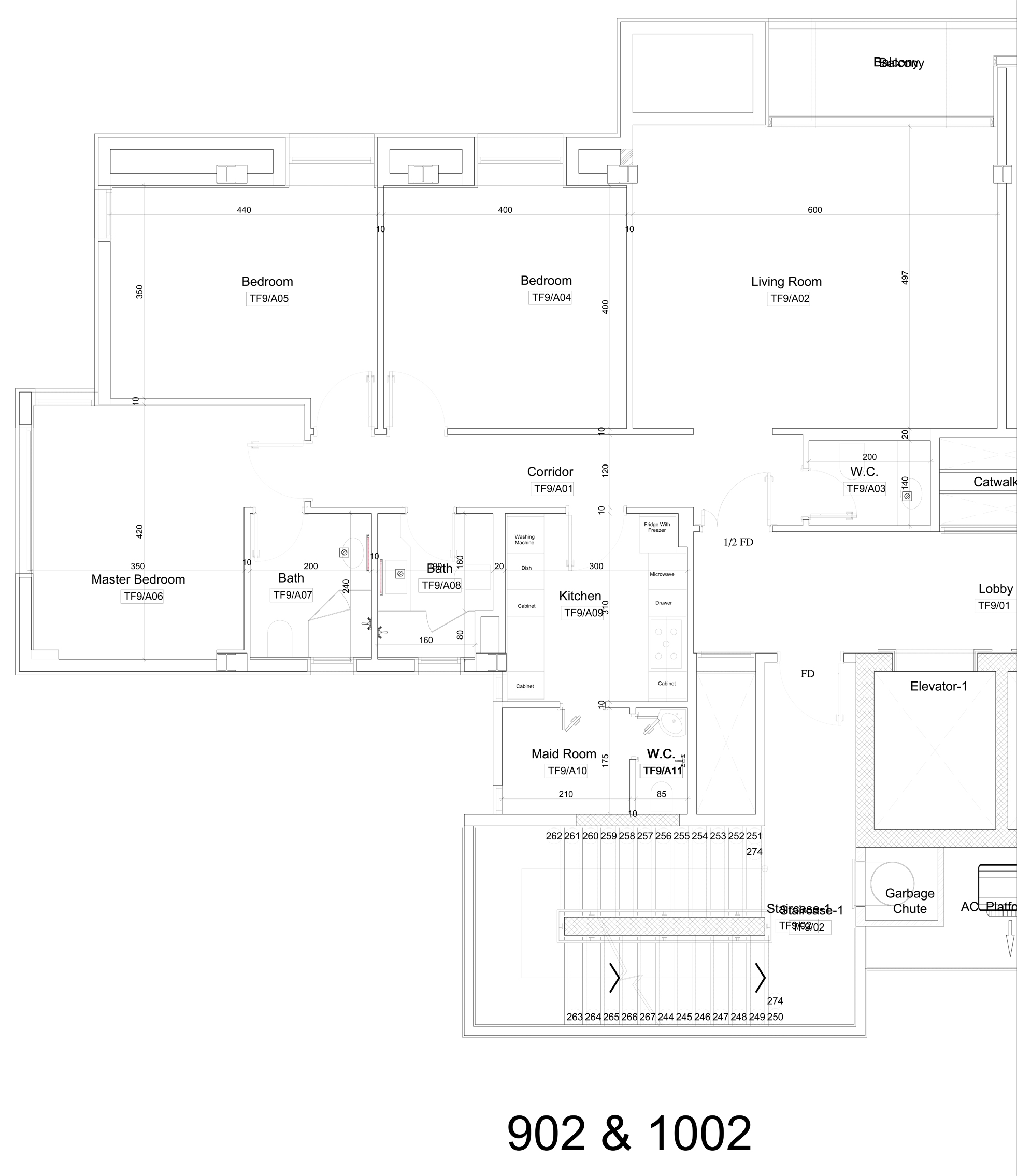
مكونات Components
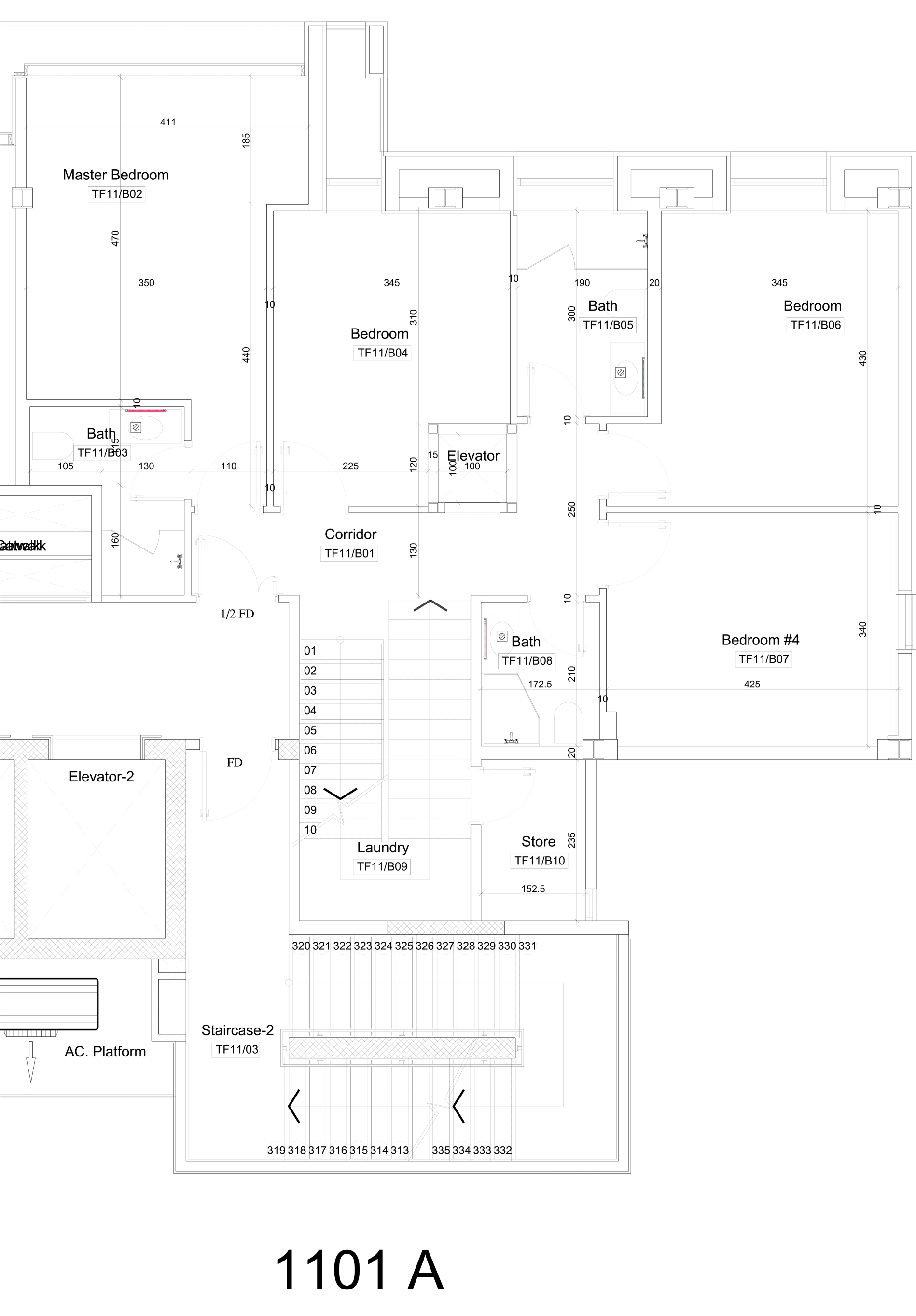
غرفة الضيوف 12*4 Guest Room
حمام ضيوف 2*1.6 Guest Bathroom
مطبخ 3.9*3.7 Kitchin
غرفة خادمة 2.7*2.10 Maid Room
حمام خادمة 2.45*1.50 Maid Bathroom
غرفة غسيل لا يوجد Laundry Room
مساحة الماستر الأول 4.70*4.10 1ST Master Room Area
مساحة الحمام الأول 2.75*2.35 1ST Bathroom Area
مساحة الماستر الثاني 4.30*3.45 2nd Master Room Area
مساحة الحمام الثاني 3*1.9 2nd Bathroom Area
مساحة الغرفة الثالثة 3.45*3.10 3rd Room Area
مساحة الغرفة الرابعة 4.25*3.40 4th Room Area
مساحة الحمام الغرف 3 و 4 2.10*1.73 3rd & 4th Bathroom Area
عدد البنت هاوس 1 Penthouse No.
عدد الماستر 2 Masters No.
حالة الشقة غير مؤثثة Apartment Status

مخطط الوحدات

الوحدات الشاغرة

رقم الطابق رقم الشقة عدد الغرف المبلغ إجراء
1 102 3 950 دينار كويتي
2 202 3 950 دينار كويتي
3 301 2 1000 دينار كويتي
4 401 2 950 دينار كويتي
5 502 3 1100 دينار كويتي
6 601 3 950 دينار كويتي
6 602 3 1100 دينار كويتي
8 801 2 1100 دينار كويتي
8 802 2 1100 دينار كويتي
9 901 2 950 دينار كويتي
10 1001 2 1000 دينار كويتي
10 1001 2 1000 دينار كويتي
10 1002 3 1200 دينار كويتي

موقع الخريطة